Derzeit betreibt gälische Musiker Séamus Ó Baoighill mit seinem Brennmeister Seumas Gorman die Destillerie 57° Skye, eine Craft-Gin-Brennerei, die 2022 in Broadford auf Skye eröffnet wurde. Nun wollen die Beiden ihre derzeitige Brennerei und ihr Besucherzentrum abreißen und durch ein vierstöckiges Whisky-Zentrum ersetzen. Und reichten beim Highland Council den Antrag und die Pläne für die neue Broadford distillery ein, wie Press&Journal berichtete.
Mit ihrer neuen Brennerei möchten die Beiden die Whisky-Geschichte von Broadford aufnehmen. Denn in etwa dort, wo die neue Broadford distillery enstehen soll, wurde die Corry-Destillerie 1816 mit Blick auf die Broadford Bay errichtet und destillierte zehn Jahre lang.
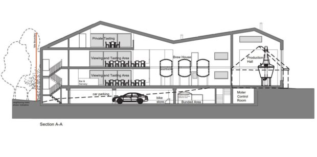
Die eingereichten Pläne sehen eine neue Brennerei vor, deren Brennblasen so groß sind wie die der bestehenden Anlage. Ein öffentlicher Café- und Barbereich erstreckt sich über zwei Etagen und bietet Besuchern einen Einblick in die Brennerei. Im Obergeschoss entstehen ein privater Verkostungsbereich und ein Veranstaltungsbereich. Jede Etage verfügt über eine angeschlossene Terrasse mit Blick auf den nahegelegenen Gipfel des Beinn na Caillich. Im Untergeschoss entstehen Parkplätze mit Ladestationen für Elektrofahrzeuge und Fahrradstellplätze. Die Pläne sehen außerdem zwölf Einzimmerwohnungen für Mitarbeitende der Brennerei und anderer lokaler Unternehmen vor, und setzen den modularen und modernistischen Entwurf fort.

















