Ronnie Grant und Iain Croucher können jetzt ihren Traum realiseren, in ihrer Lieblings-Whiskyregion eine neue Destillerie zu errichten (unser Exklusiv-Video-Interview mit den Beiden finden Sie hier). Denn der Argyll & Bute Council erteilte seine Zustimmung zum Spatenstich der Dál Riata Distillery. Im September 2023 erteilte der Council bereits die Genehmigung für den Bau der neuen Destillery am Ufer des Campbeltown Loch (wir berichteten). Anscheinend bedurfte es in diesem Prozess noch weiterer Genehmigungen und Erlaubnissen, die die Dál Riata Distillery nun erhielt. Und somit kann der Bau nun beginnen, noch dem Ende des Jahres sollen die Arbeiten beginnen.
Mehr in der englischsprachigen Pressemitteilung der Dál Riata Distillery inklusive zweier Bauzeichnungen, die wir erhalten haben:
| Presseartikel | Für den Inhalt ist das Unternehmen verantwortlich |
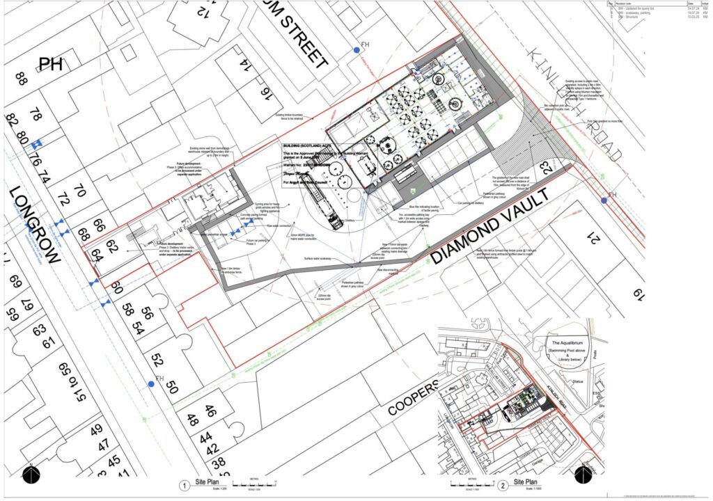
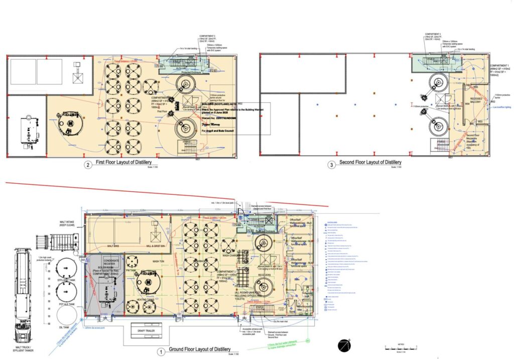
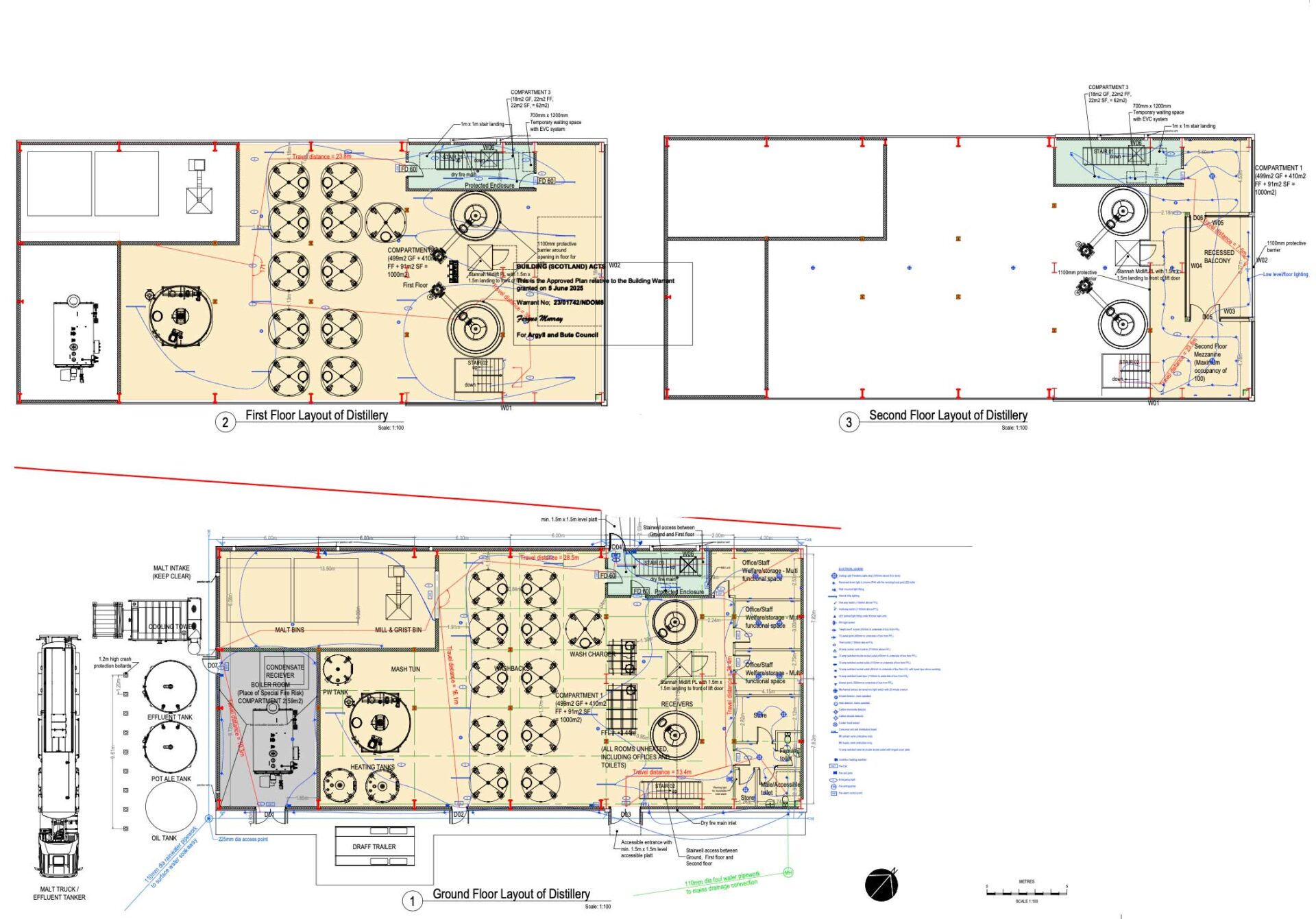
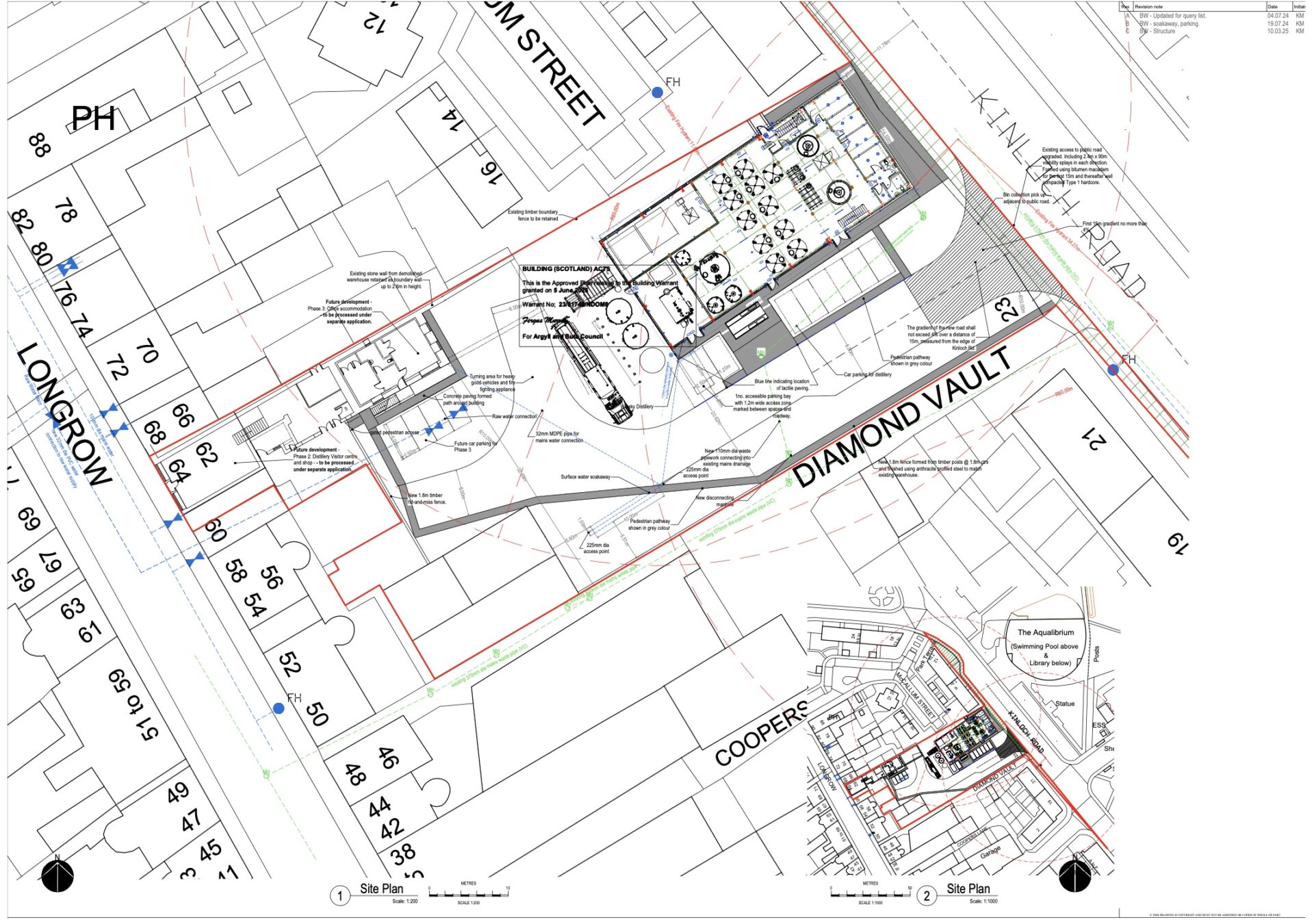
Building Warrant Approval from Argyll and Bute Council
Known in the 19th Century as the „Whisky Metropolis“, Campbeltown once boasted over 30 distilleries, thanks to its natural harbour, nearby access to coal and proximity to Glasgow’s blending houses.
However, by the 1920s, Campbeltown’s whisky industry declined due to American Prohibition changing consumer tastes, and economic downturns caused by The Great War. Many distilleries closed, leaving only two survivors in the 1930’s.
Spin forward to 2021 and two men are walking past what was Kinloch Distillery, set just back from the town’s famous esplanade. Ronnie Grant and Iain Croucher have a dream of building a new distillery in this in their favourite whisky region. They see a plot of land they know would be perfect and before a year is out, they’ve bought it.
Whilst planning permission was subsequently granted in 2023, obtaining building warrants is like maturing a fine malt and takes a wee while longer. But as we all know, good things are worth waiting for and on 5th June 2025, Argyll & Bute Council give their approval for shovels to go into the ground. The Dál Riata Distillery will no longer be a dream; it will be reality!
The unusual name is, of course, historical. In the 6th and 7th centuries The Kingdom of Alba, Dál Riata covered the whole of Argyll; Islay, Jura, Mull, Ardnamurchan, Cowal, a north-eastern corner of Ireland and Kintyre.
Today, Campbeltown is already experiencing a revival, with its whiskies prized for their bold and pungent flavours, rugged maritime character, deep-rooted heritage and pioneering innovation.
For Ronnie Grant it is the ideal location
“There is no better whisky town in Scotland than Campbeltown. We are getting to add to the wee toon’s rich distilling history with the creation of our own distillery Dál Riata”
Iain Croucher, owner of three-time winning Independent Scotch Whisky Bottler of the Year brand North Star Spirits is equally enthusiastic about the area.
“Campbeltown is magnificent in just about every way, I holiday here twice a year with my wife and kids. Just so happens it’s also my favourite Scotch Whisky region”
The Dál Raita Distillery will not be a modest operation. With a planned capacity of 850,000 litres of pure alcohol per year it will also be accompanied by a bottling company and extensive warehousing. It will also bring employment to an area that for too long suffered economic decline.
With planning permission and building warrant approval now granted, work on the site is scheduled to commence before the end of the year and another chapter of Campbelltown’s remarkable whisky story will start to be written.





















